Používame cookies

Súbory cookie a ďalšie technológie sledovania používame na zlepšenie vášho zážitku z prehliadania našich webových stránok, na to, aby sme vám zobrazovali prispôsobený obsah a cielené reklamy, na analýzu návštevnosti našich webových stránok a na pochopenie toho, odkiaľ naši návštevníci prichádzajú. Viac info

 

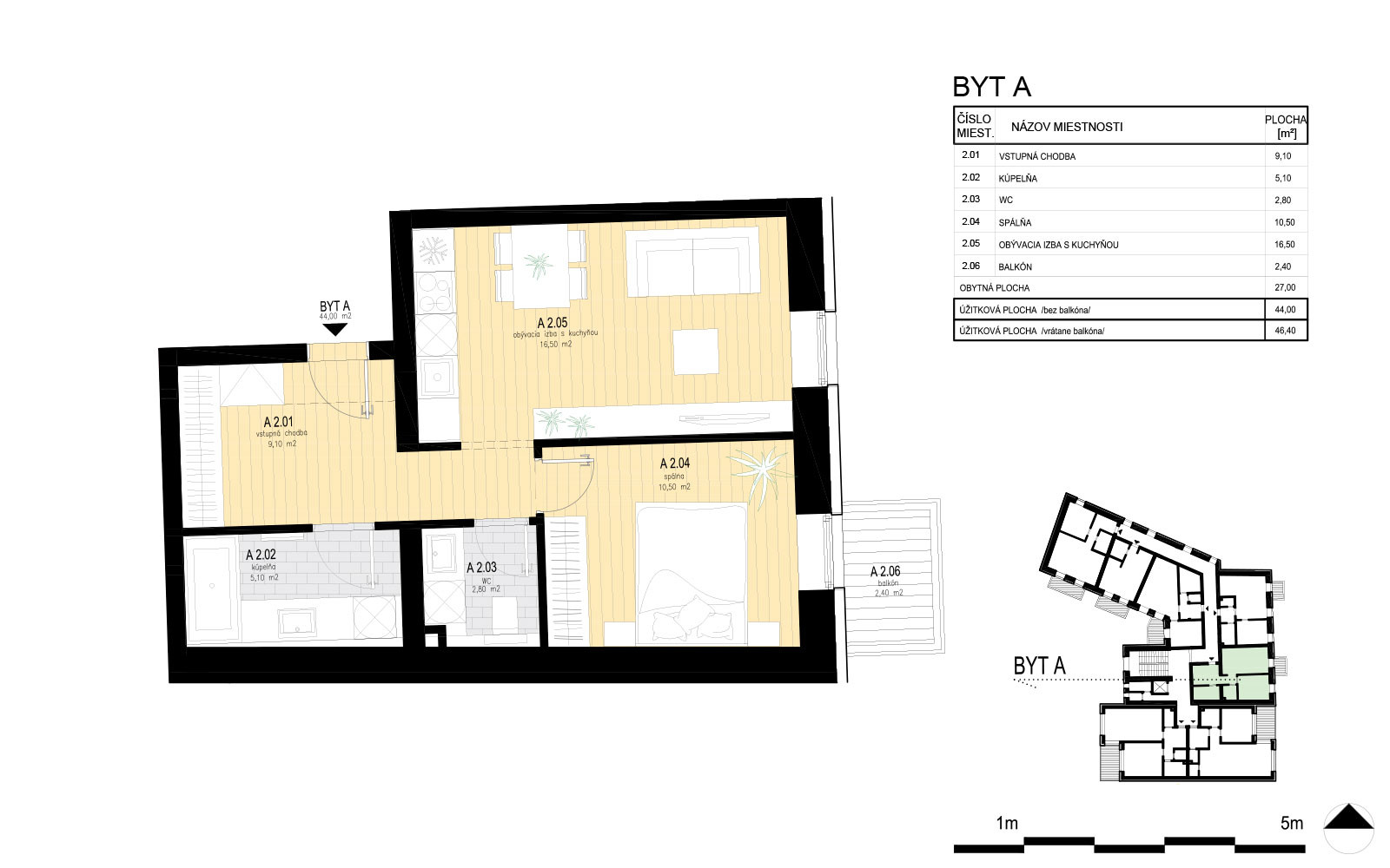
Byt A

Interné ID: A.00.01
Ulica: SNP
Mestská časť: Centrum
Obec: Turčianske Teplice
Okres: Turčianske Teplice
Kraj: Žilinský kraj
Druh: Byty
Typ: Predaj
Typ bytu: 2-izbový byt
Rezervované

Byt sa PREDÁVA v štandarde.

Vlastnosti

Status:
rezervované
Celková plocha:
46.4 m2
Úžitková plocha:
44 m2
Poschodie:
1.poschodie
Počet izieb:
2
Plocha balkóna:
2.4 m2
Balkón:
áno
Kúpeľňa:
áno
Počet kúpeľní:
1
El. napätie:
230V
Parkovanie:
áno
Voda:
verejný vodovod
Pivnica:
áno
Pivnica plocha:
3.2 m2

Informatívna úverová kalkulačka

Generálny predajca

Samuel Hvizd M.A.

Samuel Hvizd M.A.

ROYAL MARIE

Business Development Manager

  • Slovensky
  • Česky
  • English
  • French
  • Polskie

Radi Vám poradíme

Podobné nehnuteľnosti