Používame cookies

Súbory cookie a ďalšie technológie sledovania používame na zlepšenie vášho zážitku z prehliadania našich webových stránok, na to, aby sme vám zobrazovali prispôsobený obsah a cielené reklamy, na analýzu návštevnosti našich webových stránok a na pochopenie toho, odkiaľ naši návštevníci prichádzajú. Viac info

 

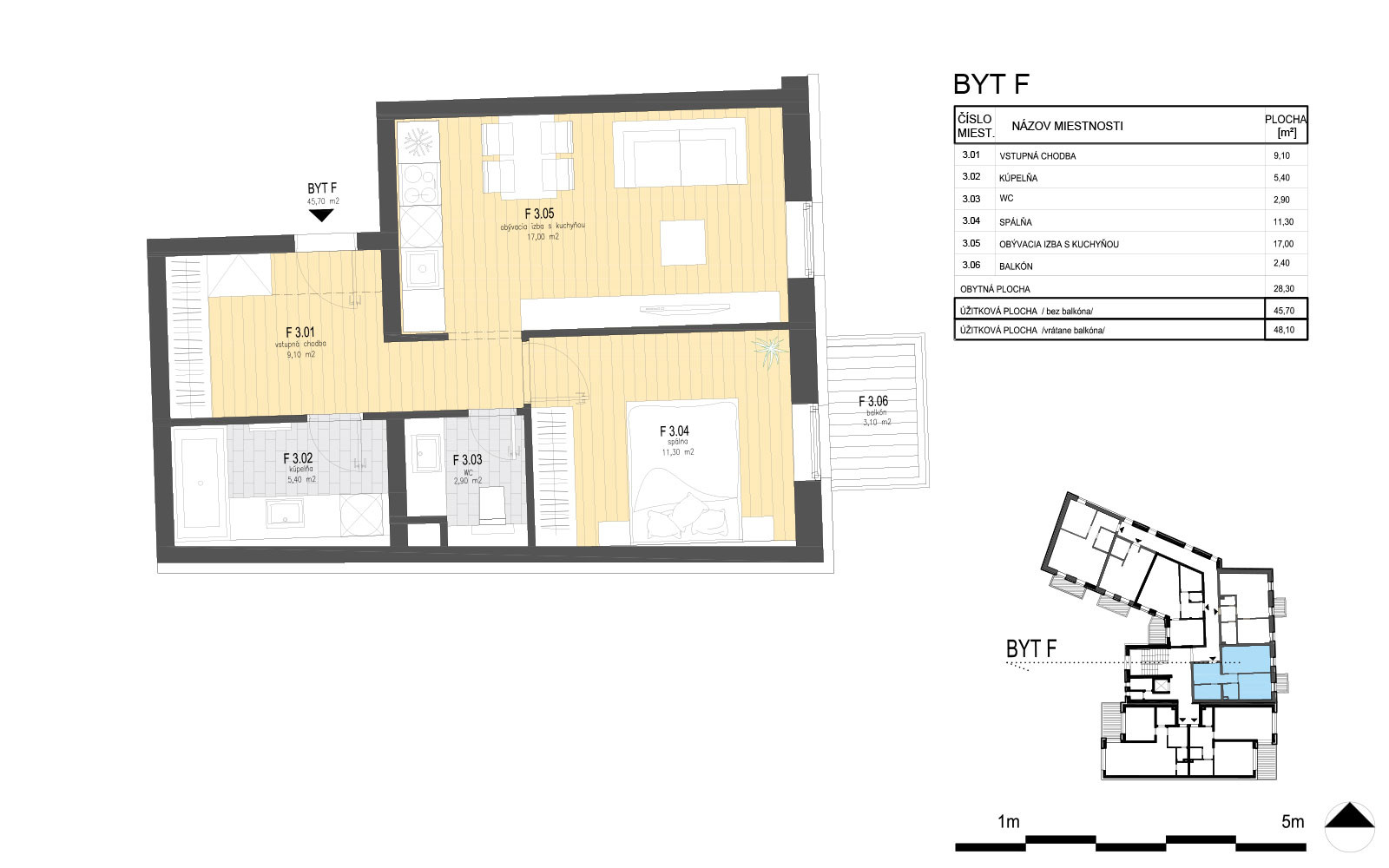
Byt F

Interné ID: F.00.01
Ulica: SNP
Mestská časť: Centrum
Obec: Turčianske Teplice
Okres: Turčianske Teplice
Kraj: Žilinský kraj
Druh: Byty
Typ: Predaj
Typ bytu: 2-izbový byt
Predané

Byt sa PREDÁVA v štandarde.

Vlastnosti

Status:
predané
Vlastníctvo:
korporácia
Úžitková plocha:
45.7 m2
Stav:
novostavba
Počet izieb:
2
Balkón:
áno
Pivnica:
áno
Poschodie:
2
Celková plocha:
48.1 m2
Plocha balkóna:
2.4 m2
Pivnica plocha:
3.6 m2

Generálny predajca

Samuel Hvizd M.A.

Samuel Hvizd M.A.

ROYAL MARIE

Business Development Manager

  • Slovensky
  • Česky
  • English
  • French
  • Polskie

Radi Vám poradíme

Podobné nehnuteľnosti